Ontwerpbestemmingsplan Peize-Zuid ter inzage

22 feb. 2022
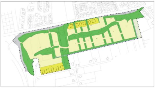
Hoofdafbeelding

Burgemeester en wethouders van de gemeente Noordenveld maken bekend dat het ontwerpbestemmingsplan Peize-Zuid ter inzage wordt gelegd. Het ontwerpbestemmingsplan maakt de bouw van 150 woningen aan de zuidkant van Peize mogelijk. Het plangebied wordt aan de noordzijde begrensd door de Achteromweg, aan de zuidzijde door de agrarische woonpercelen, (noordelijk) aan de Oostingslaan, aan de oostzijde door bebouwing langs de weg De Pol en aan de westzijde door de weg Breeveen.
Op het bestemmingsplan is de Crisis- en herstelwet van toepassing.

 

Ontwerpbesluit Hogere waarden
Ook is een ontheffingsverzoek hogere grenswaarden Wet geluidhinder. Het verzoek hogere grenswaarden volgt uit de bouw van 14 woningen, waarvan de voorkeurgrenswaarde wordt overschreden.

 

Inzage en zienswijze
Het ontwerpbestemmingsplan en bijbehorende stukken liggen met ingang van donderdag 24 februari 2022 tot en met woensdag 6 april 2022 ter inzage in het gemeentehuis. Daarnaast kunt u de stukken vinden op www.ruimtelijkeplannen.nl  en
www.noordenveld.nl/terinzage .

 

Tijdens de termijn van ter inzage legging kan iedereen schriftelijk of mondeling een zienswijze over het ontwerpbestemmingsplan geven. Een schriftelijke zienswijze kan gericht worden aan gemeenteraad, Postbus 109, 9300 AC Roden onder vermelding van ‘zienswijze bestemmingsplan Peize-Zuid. Voor een mondelinge zienswijze kunt u een afspraak maken met de heer D. Bethlehem, via het telefoonnummer 088 – 050 87 30. Zienswijzen zullen worden betrokken bij de uiteindelijke vaststelling van het bestemmingsplan.

 

Ten aanzien van het ontheffingsverzoek hogere grenswaarde kunt u tijdens de termijn van ter inzage legging een zienswijze bij het college van burgemeester en wethouders van Noordenveld indienen. Hiervoor kunt u hetzelfde adres en vermelding gebruiken als hierboven genoemd.

Deel deze pagina